За 4 роки роботи експертом з нерухомості я розробив власну ефективну технологію продажів і точно знаю, як швидко та вигідно реалізувати Ваш об’єкт. Допоможу обрати найкращу нерухомість для життя, бізнесу чи інвестицій — з урахуванням усіх Ваших потреб та цілей!
ОРЕНДА офісного приміщення в БЦ "Carnegie Tower"
вул. Кловський узвіз 7
24-й поверх з 46
ПЛОЩА - 150 м.кв.
️ІНВЕРТОР на 5 кВт️
Вашій увазі пропонується ОРЕНДА офісного приміщення по вул. Кловський узвіз 7 (5 хв до метро “Кловська”)
Приміщення розміщене на 24 поверсі з 46 з якого відкривається бездоганний вид на все місто.
Бізнес – центр розташований у дуже вдалій локації з розвиненою інфрастуктурою.
В приміщенні виконаний євроремонт та проведена комплектація офісним оснащенням та меблевою фурнітурою. Саме приміщення має відмінне планування кабінетного типу.
ПЛАНУВАННЯ:
Вхідна група;
5 приміщень (4 великих та 1 переговорна суміжна з кабінетом );
Приміщення кухні;
Приміщення санвузла – 2...
Оренда офісу 92 м² у ТРЦ Smart Plaza | біля метро Політехнічний інститут
Сучасний офіс із якісним ремонтом у престижному бізнес-центрі Smart Plaza, просп. Берестейський, 26.
Локація — прямо біля станції метро Політехнічний інститут.
Площа: 92 м²
Поверх: 5 із 23
Офіс повністю готовий до роботи:
— функціональне планування;
— сучасний офісний ремонт;
— обладнаний санвузол та кухонний блок.
Ідеальний варіант для IT-компанії, консалтингу чи представницького офісу.
Будівля з охороною, швидкісними ліфтами та розвиненою інфраструктурою — кафе, ресторани, магазини й фітнес-клуб просто у комплексі.
A24026
Оренда офісу
Запрошуємо вас ознайомитися з унікальною можливістю оренди офісу прямо в серці Києва! Це приміщення розташоване в престижному Печерському районі за адресою вулиця Еспланадна, 32-В.
Офіс розпланований на 20-24 робочих місць.
Загальна площа - 115 м2
Висота стель - 3.6 м
Поверх - 1/6
Функціональне планування:
- 20 робочих місць
- Переговорна кімната
- Кухня
- Санвузол
Це не бізнес центр, а окремо стояча будівля. Площа ділянки - 8 соток. Власна закрита територія має парковку, яка входить у власність, забезпечує зручність для вашої команди та клієнтів.
Комунікації на всю будівлю:
• Заведено 60 кВт потужності на 3 фази.
• Централізоване опалення, вода і каналізація.
Об’єкт розт...
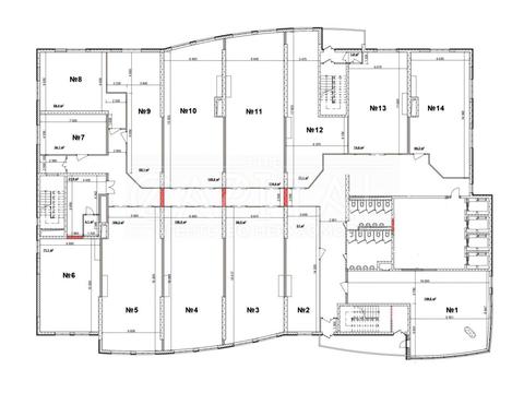
Оренда офісу по поверхам з меблями у Голосіївському районі.
Найближча станція метро Льва Товстого - 10 хв.
Загальні по поверхові суми в доларах США, що наведені нижче, включають в себе: орендну плату,
сервісні/експлуатаційні платежі, включаючи централізовану цілодобову охорону Будівлі та щоденне
прибирання всіх приміщень Будівлі.
Витрати на зв’язок, Інтернет орендар замовляє та сплачує самостійно.
Всі наведені нижче суми включають ПДВ.
Оплата здійснюється в гривні за офіційним курсом НБУ на перше число кожного місяця оренди.
Другий поверх: 288,5 м2 - $7789,50;
Планування:
1 поверх: вхідна група, ресепшн, кухня,ліфтовий хол, санвузли, 1 Open Space, 2 meeting-рума.
2, 3, 4 і 5 поверхи тип...
Пропонується в оренду сучасний офіс площею 90 м² на 4-му поверсі шестиповерхового будинку, розташованого в зручному місці поруч зі станцією метро "Арсенальна".
Основні характеристики:
• Новий ремонт, все в ідеальному стані
• Зроблена хороша шумоізоляція
• Сучасна кухня з новою технікою: мікрохвильова піч, чайник, холодильник, посудомийна машина
• Санвузол та душова кімната
• Офіс у форматі open space та переговорка з телевізором
• Два кондиціонери для комфортного клімату
Зручності:
• Ліфт у будинку
• Центральне опалення
• Газова колонка та бойлер для гарячої води
• Нова електрика, лічильники на воду, світло та газ
• Інтернет (оптоволокно) та є можливість підключення резервного ж...
Код об'єкта 3 1 5 9 1 7 3 3 6 3 2 7
офіс на 5 кабінетів
12 повперх
У БЦ на сьогодні немає проблем з електропостачанням (дві лінії живлення, відсутність електроенергії можлива упродовж 5 - 10 хвилин під час перемикання, але у дуже рідких випадках).
Приміщення здається без меблів .
Крім того БЦ вже очікує генератор, який буде під'єднано майже до всіх комунікацій бізнес - центру:
- освітлення та електропостачання офісних приміщень,
- водопостачання,
- системи безпеки,
- один вантажно-пасажирський ліфт,
- частково системи опалення офісного центру, що дасть можливість у разі необхідності підтримувати температуру до 18-20 С.
Договір можемо підписувати на мінімальний термін 35 місяців
Код об'єкта A 5 6 4 0
Оренда преміальної 1-кімнатної квартири у ЖК «Лейпцизький».
Перша здача сучасної квартири у тихому центрі Києва, поруч зі станціями метро Кловська та Печерська.
Будинок бізнес-класу 2018 року побудови, розташований у престижному районі - Печерськ.
В КВАРТИРІ Є ІНВЕРТОР 5 КВТ
Основні характеристики:
- Площа - 62 / 20 / 12 м²;
- Поверх - 6 із 7.
Квартира виконана за авторським дизайн-проєктом у сучасному стилі з використанням якісних матеріалів. Продумане зонування створює відчуття простору та комфорту.
У квартирі:
- панорамні вікна;
- підігрів підлоги;
- гардеробна;
- балкон / лоджія.
Квартира оснащена всією необхідною побутовою технікою:
- посудомийна машина;
- к...
Пропонується в оренду квартира 47м2 в ЖК Львівська площа за адресою вул.Кудрявська 24а , історичний центр міста, неподалік метро Золоті Ворота !!
Квартира повністю нова,щойно закінчили ремонт ,ПЕРША ЗДАЧА!!
РОЗГЛЯДАЄМО З НЕВЕЛИКИМИ СОБАЧКАМИ
Розташована на невисокому , безпечному 6 поверсі( загалом 15).
Планування:
-простора кухня вітальня з диваном ,котрий розкладається і стає додатковим спальним місцем
-окрема спальня
-засклений балкон
-вмістка гардеробна
-суміжний санвузол з душем.
Квартира має багато переваг , функціональне планування, дуже багато місць для зберігання речей: повноцінна гардеробна з окремими поличками при вході , аби було зручно одразу лишати верхній одяг чи взуття,...
Пропонується будинок площею 253 м2.
Оренда будинку біля м. Академмістечко
Здається будинок у приватному секторі в 3 хвилинах пішки від метро Академмістечко (м.Академгородок).
Площа 253 м2
• 5 кімнат
• Простора кухня
• Вітальня
• 2 санвузли ( є джакузі ) і сауна
• мансарда Опенспейс
Є велике підвальне приміщення - БОМБОСХОВИЩЕ
Зручності:
• Індивідуальне газове опалення 25 кВт і камін на дровах, електрика 5кВт, можливість заряджати електро авто
• Центральне водопостачання та каналізація
• Побутова техніка кухні в наявності
Призначення:
Підходить як для житла, так і під офіс
Зручне розташування, тиха вулиця, близькість до метро — ідеальний варіант для комфортного проживання або ведення...
Оренда квартири ЖК Manhattan City, перша здача
Пропонується в оренду сучасна квартира у центральній частині Києва, у престижному житловому комплексі «Манхеттен». Зручне розташування між станціями метро «Політехнічний інститут» та «Університет» забезпечує швидкий доступ до будь-якої частини міста. Поруч — вся необхідна інфраструктура: магазини, кав’ярні, заклади освіти, медичні установи.
Основні характеристики:
Площа: 55 м²
Перша здача. Квартира повністю нова
Сучасний дизайнерський ремонт з повним переплануванням
Формат: велика студія з кухнею та зоною відпочинку, окрема спальня, гардеробна, робоче місце на утепленому балконі
Панорамні вікна з видом на проспект
Додаткова шумоізоляція...
Верифікація BankID відкриється у новому вікні. Якщо сторінка верифікації не відкрилася, вікно було заблоковане вашим браузером.Щоб дозволити відкриття вікна, виконайте такі кроки:
1. Перевірте адресний рядок браузера на повідомлення про помилку або піктограму блокування. Натисніть на нього.
2. Якщо у вас встановлено блокувальник спливаючих вікон, тимчасово відключіть його для цього сайту.
3. Перевірте налаштування вашого браузера і переконайтеся, що блокування спливаючих вікон вимкнено або налаштовано на дозвіл відкриття цього вікна.
Якщо проблема залишається невирішеною, зверніться до нашої служби підтримки.
Як верифікуватись через Дію?
Верифікація Дія відкриється у новому вікні. Якщо сторінка верифікації не відкрилася, вікно було заблоковане вашим браузером.Щоб дозволити відкриття вікна, виконайте такі кроки:
1. Перевірте адресний рядок браузера на повідомлення про помилку або піктограму блокування. Натисніть на нього.
2. Якщо у вас встановлено блокувальник спливаючих вікон, тимчасово відключіть його для цього сайту.
3. Перевірте налаштування вашого браузера і переконайтеся, що блокування спливаючих вікон вимкнено або налаштовано на дозвіл відкриття цього вікна.
Якщо проблема залишається невирішеною, зверніться до нашої служби підтримки.
Вітаємо! Рекомендацію зараховано!
Незабаром рекомендація зʼявиться на сторінці рієлтора.
Рекомендацію не зараховано.
Ви вже залишали рекомендацію даному рієлтору.
Додати оголошення
Публікація оголошень доступна для зареєстрованих користувачів в ролі “Рієлтор” чи “Власник“.
Якщо на вашій сторінці АН залишились оголошення, які ви хочете опублікувати, будь ласка, напишіть нам за ким із рієлторів вашого агентства їх закріпити.
Зареєструйте рієлторів АН на RIELTOR.UA, та привʼяжіть їхні акаунти до акаунту АН, щоб:
бачити сукупну статистику та витрати по оголошенням ваших рієлторів,
поповнювати баланс вашим рієлторам,
бачити в кабінеті всі оголошення, створені вашими рієлторами,
оголошення рієлторів були брендовані логотипом вашого АН